반응형

작업 전 현장에 알맞은 굴착기 확인하기 위해 제원표가 필요하고 서류 작성하실 때도 필요합니다.
제원표 찾기가 아주 어려운데요. 제가 하나씩 찾아서 공유해드리겠습니다.
미니 굴착기 중에서도 가격도 합리적이고 작업도 괜찮아서 많은 사랑을 받고 있습니다.
현장에서도 간단한 작업에는 017이 최적이라고 생각합니다.
얀마 Vio17-1
[Vio17-1 제원표]
| 모델명 |
Vio17-1 | |
| 자체중량 |
1,801 kg | |
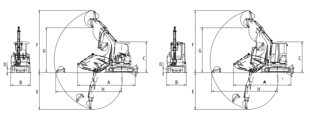
| 전장 (A) | 3,495 mm | |
| 전폭 (B) | 950 ~ 1,280 mm | |
| 전고 (C) | 2,380 mm | |
| 최저 지상고 (D) | 167 mm | |
| 최대 굴삭깊이 (E) | 2,370 mm | |
| 최대 굴삭높이 (F) | 3,690 mm | |
| 최대 덤프높이 (G) | 2,420 mm | |
| 최대 굴삭반경 (H) | 3,870 mm | |
| 스윙각도(좌/우) | 41도 / 74도 | |
| 최소 회전반경 (전방) | 1,330 ~ 1,540 mm | |
| 최소 회전반경 (후방) | 차폭내 | |
| 표준버켓용량(평적/산적) | 0.04 ㎥ / 0.5 ㎥ | |
| 엔진 모델 | 3TNV70 | |
| 엔진 정격출력 | 14 ps / 2,200 rpm | |
| 엔진 최대토크 | 5.3 kgf * m/ 1,600 rpm | |
| 유압 토출량 | 17.6 x 2 L/min 16.7 x 1 L/min |
|
| 유압 사용압력 | 210 x 2 kgf/㎠ 170 x 1 kgf/㎠ |
|
| 블레이드 폭 | 950 ~ 1,280 mm | |
| 블레이드 높이 | 250 mm | |
| 선회속도 | 9.5 rpm | |
| 주행속도 | 4.2 km/h / 2.1 km/h | |
| 등판각도 | 30도 | |
| 접지압 | 0.3 kg/ ㎠ | |
| 트랙길이 | 1,540 mm | |
Vio17-1 전장은 붐대접은 상태를 포함해서 3,495mm이고요. 전폭은 950~1,280 mm, 전고는 2,380 mm입니다. 전폭과 블레이드 폭이 범위로 표시된 이유는 트랙, 블레이드를 확장/축소 가능하기 때문입니다.
아래 사진 참고해서 우리 현장 작업에 알맞은지 규격을 알아보세요.

얀마 017인 Vio17-1은 전작의 LED라이트가 아니어서 불편했던 것에서 LED가 기본으로 적용되었습니다. 주행 알림 온오프 스위치가 있어 시끄럽던 소리도 껐다 킬 수 있게 되었고요. 그래도 안전을 위해서 작업 중엔 항상 On 하는 것을 추천드립니다.
개별 시동키, 경첩식 가변블레이드, 냉각효율 향상 등 전작보다 더욱 좋아진 것으로 보이네요.
이상 Vio17-1 얀마의 017 굴착기 제원표, 규격을 알아보았습니다.
다양한 건설장비 제원표를 원하시면, Con매니저 구독하시고 제원표를 쉽게 찾아보세요!
반응형
'건설 정보' 카테고리의 다른 글
| 해외 근본 굴삭기, 볼보 3W EW60E PRO (2) | 2024.09.30 |
|---|---|
| 미니의 노하우를 살린 얀마 공투, 02 굴착기 Vio55-6A (2) | 2024.09.26 |
| 국민 미니 굴착기, 035 얀마 Vio35-6A(캐빈) 제원표 (2) | 2024.09.25 |
| 굴착기 차주들이 인정하는, 3W 현대 DX65W-7 제원표 (2) | 2024.09.24 |
| 범용성 끝판왕, 02 굴착기 현대 DX65-7 제원표 (0) | 2024.09.24 |